Appartamento in Vendita
Trilocale con due bagni, già avviato e ideale per ottenere un'immediata rendita mensile
Proponiamo agli investitori questo Appartamento a reddito, gestito da un'ottima società, specializzata nella gestione di case vacanza, B&B e affitti brevi, che, da diverso tempo, garantisce alla Proprietà notevoli profitti grazie alle caratteristiche dell'immobile a alla sua posizione strategica: vicinissimo al Policlinico S. Orsola-Malpighi e non lontano dal Centro Storico di Bologna (raggiungibile in pochi minuti, anche con i mezzi pubblici).
Siamo nella servitissima zona San Vitale/Massarenti.
Il nostro è un piccolo condominio, senza ascensore, con unità abitative dotate di riscaldamento autonomo, ben amministrato e con basse spese di gestione (circa 52.00 Euro/mese).
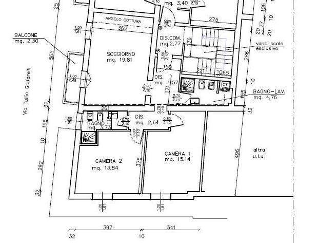
L'Appartamento, di 86 mq circa, è situato al primo piano ed è formato da: ingresso, disimpegno, soggiorno/pranzo con balcone e cucina a vista, due camere, due bagni (dei quali uno cieco). Inoltre, è dotato di una grande cantina al piano seminterrato e di uno spazio per parcheggiare l'auto nel cortile chiuso da cancello (di fianco ad uno spazio analogo, di proprietà di un altro condomino).
Questa unità è completa di arredi ed elettrodomestici e lo stato di manutenzione è ottimo.
Caldaia autonoma a metano e impianto di aria condizionata con Classe Energetica è E (coefficiente: 147,17 kWh/m2 anno).
Grazie alla sua posizione, questo immoblie, si presta ad offrire una preziosa base d’appoggio ai numerosi parenti di pazienti ricoverati nel vicino Ospedale Sant’Orsola, che provengono da altre regioni d’Italia. A questo fattore si aggiunge il vertiginoso aumento dei flussi turistici a Bologna, col ritorno delle grandi Fiere e con il sempre più intenso calendario di mostre, eventi, spettacoli e concerti. Se consideriamo anche il suo avviamento, questo Appartamento offre un invito irresistibile a saltare su di un treno già in piena corsa.
Immobile in collaborazione con altra Agenzia. Per informazioni aggiuntive e/o richieste di sopralluogo (previa firma del foglio visita) telefonate al 348 8911523, Paolo Giacopini Immobiliare.
Classe energetica
EP glnr: 147.17 kwh/m²

















